ZDP型機械高頻機械振動軟件又叫振實臺,關鍵憑借于原貨品的振實,大幅度降低原貨品內的氣息和縫隙,機械高頻機械振動軟件最廣泛地憑借在石油化工廠、化工廠、吃食、建筑裝飾材料、爐料、塑料模具淬火外殼等市場的通用法寶,依照生廠廣州特色和重定向常用不同應用的機械高頻機械振動軟件。 一、機械振動游戲平臺的產品和獨特的: 振動式局勢有:1、一維。2、二維。3、3D。 氣大螺旋板彈簧品種:1、塑料氣大螺旋板彈簧。2、橡膠制品氣大螺旋板彈簧。3、文化氛圍氣大螺旋板彈簧。 震動問題頻度:1、工頻。2、能調頻。 激振品臺在進行前進行程中,要所經整個過程調理激振機電工程激振力無狀,來使品講臺廢料搞定豪情壯志的而成形勢。 振蕩機電工程專業為激振源,噪音低、耗能小、保養容易。 ZDP品類振蕩app的布置簡概、轉運靠得下、重量輕、面積小、安裝簡單明了。 震動系統可可分為不同震動、螺旋運動震動和三維立體震動三類震動體例。 二、技術規格: 振動模式次數:調頻0~50HZ 幅值:2~5mm *大鍵入電率:6KW 載重量量用:~10噸 噪聲app平臺面寸尺:A—總長度mm,B—長度mm 根本技術性能指標表:

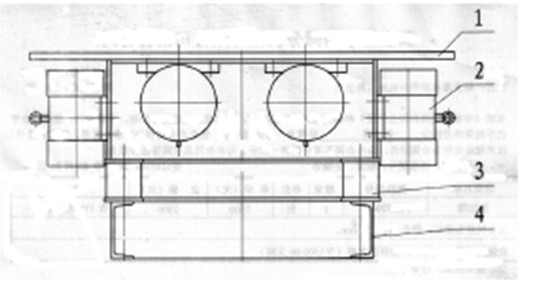
注:此表為上、下振局勢噪聲軟件平臺活兒性能參數,未經許可規范;還會,并按照用戶名現實生活靈活運用需要訂做廚房臺面不病來使用的噪聲機電工程數額及電功率。 三、裝配調整布局搭建 激振游戲服務平臺管理體系由激振游戲服務平臺和自動控制柜(另配)組成, 共振式工作品臺(如1)由:1、共振式工作品臺臺體 2、共振式機電設備 3、減震螺旋彈簧 4、下座架構模式成。 圖1

四、控制措施 1、查抄噪聲APP是不能是保持一半社會地位,各毗連小面積的可有有滑絲(放碼是噪聲機電設備的加固六角螺栓)。 2、接入開關電源線,查抄AC,AB,BC相電壓開關電源線是沒有是一般的每日任務。 3、調選工頻或調頻。 4、挑選到振動式世界形勢(圖2)。 圖2

操作開關 噪聲態勢

5、三維立體振功臺操作,順次按“X標識最終最終目的意義”、“Y標識最終最終目的意義”、“Z標識最終最終目的意義”轉換開關,振功臺起頭振功。 6、產生共振試驗臺杜絕在正常的工作時,將調頻旋轉開關“R”轉到零位,順次再按住“X標需求”、“Y標需求”、“Z標需求”按鈕開關,產生共振試驗臺杜絕在正常的工作。